Wie ihr ja aus vorherigen Mitteilungen erfahren habt, bemühen wir uns seit einiger Zeit darum, mehr Raum für Sport im Dorf zu schaffen. Nun starten wir einen neuen Anlauf am Festungsstadion, wo wir unser Umkleidegebäude aufstocken wollen.
Unser ursprünglicher Plan, einen Anbau eines Bewegungsraums an die Aper Sporthalle mithilfe einer Förderung aus der VW-Milliarde zu realisieren, wurde seitens des Gemeinderates abgelehnt. Durch unseren Antrag aus dem August letzten Jahres wurde eine Überprüfung der Aper Sporthallen auf ihren Sanierungsbedarf hin beauftragt, welche wenig überraschend ergab, dass die Sporthalle in Apen den größten Bedarf aufweist. Um alle erforderlichen Sanierungsarbeiten durchzuführen, würden Mittel in Höhe von ca. 2,2 Millionen Euro benötigt. Dabei ist unser Anbauplan noch nicht berücksichtigt, so dass sich realistisch betrachtet in näherer Zukunft sicher nichts in dieser Richtung umsetzen lässt. Nun sind wir natürlich froh, hier zumindest mal einen Stein ins Rollen gebracht zu haben, in Sachen mehr Platz hilft es uns jedoch nicht weiter.
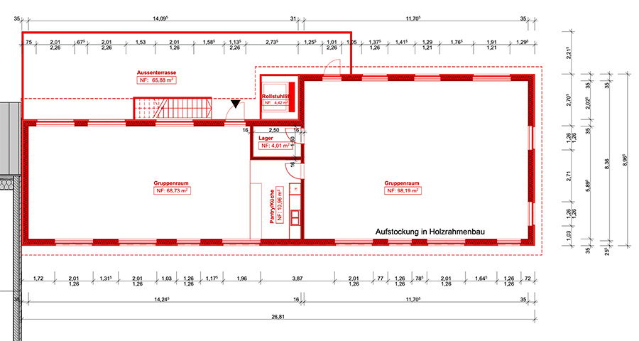
Da uns Kopf in den Sand stecken allerdings nicht so liegt, haben wir bereits einen neuen Ansatz entwickelt, den wir seit der Ablehnung durch den Gemeinderat nun tatkräftig verfolgen: Wir wollen unser Umkleidegebäude am Festungsstadion um ein weiteres Vollgeschoss wachsen lassen. Wie das ganze aussehen könnte, seht ihr im oben dargestellten Foto. Es handelt sich dabei um einen etwa 100 qm großen Bewegungsraum für Sportgruppen von etwa 12 Personen. Zudem entsteht daneben ein Begegnungsraum, in dem wir unsere Sitzungen, Theorieeinheiten und andere Zusammenkünfte der Abteilungen durchführen können. Zudem ist ein kleiner Abstellraum für Sportgeräte vorgesehen. Um das zweite Obergeschoss auch allen Menschen zugänglich zu machen, ist ein Lift genauso eingeplant, wie ein behindertengerechtes WC im Erdgeschoss. Hier seht ihr den Grundriss des geplanten Obergeschosses zum jetzigen Planungsstand:
Dieser Sportraum stünde unseren Abteilungen rund um die Uhr uneingeschränkt zur Verfügung. So könnten wir beispielsweise endlich auch in den Vormittagsstunden Angebote darstellen, was uns derzeit aufgrund der Schulnutzung der Sporthalle verwehrt ist. Insbesondere die Bereiche Gesundheitssport, Rehasport, Tanzgruppen und seniorengerechte Angebote haben wir für diesen Raum im Blick.
Wir haben hierfür gemeinsam mit dem Architekten Carsten Mennenga einen Vorentwurf entwickelt, nach der diese Maßnahme in etwa 400.000€ kosten würde. Hierfür werden wir Mittel aus dem Dorfentwicklungsprogramm beantragen, dessen Fördersatz bei 73% liegt. Zudem möchten wir natürlich auch an anderen Stellen Mittel einwerben und werden uns mit Eigenmitteln, Eigenleistungen und einer Kreditaufnahme an der Maßnahme beteiligen. Hierzu haben wir unter anderem unseren Antrag an die Gemeinde Apen gerichtet.
Soweit ihr Frage rund um dieses Thema habt, wendet euch gerne an ein Vorstandsmitglied eures Vertrauens. Wir werden euch wie gewohnt auf dem Laufenden halten. Morgen wird dazu auch ein Artikel in der NWZ abgedruckt, den ihr euch hier in unserem Pressearchiv ansehen könnt.


